Nous utilisons des cookies et des logiciels statistiques. Veuillez lire notre politique de confidentialité.

Nous utilisons des cookies et des logiciels statistiques. Veuillez lire notre politique de confidentialité.

Paramètres enregistrés
Jordan Möller Architectes

Teilinstandsetzungen Stadthaus Schlieren, 2008-2015

Das Stadthaus steht an der Grenze zwischen Einwohnern und Administration. Sein Auftritt und seine Erscheinung machen sie sichtbar, vermitteln ihren gewünschten Charakter. Die architektonische Frage, die unser Beitrag behandelt, ist, wie seine Ansicht zu verändern ist, wenn die Beziehung verändert wird.

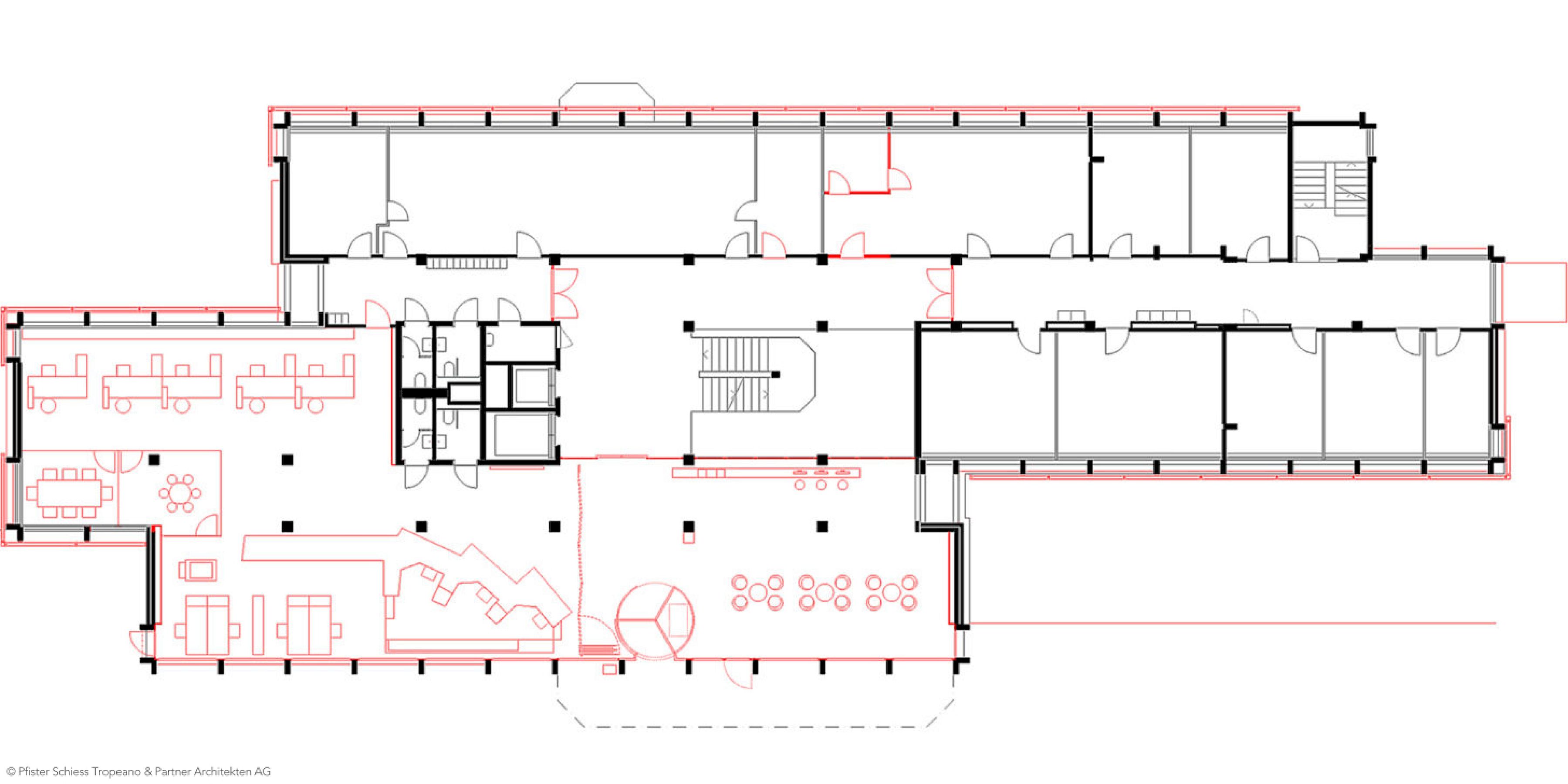
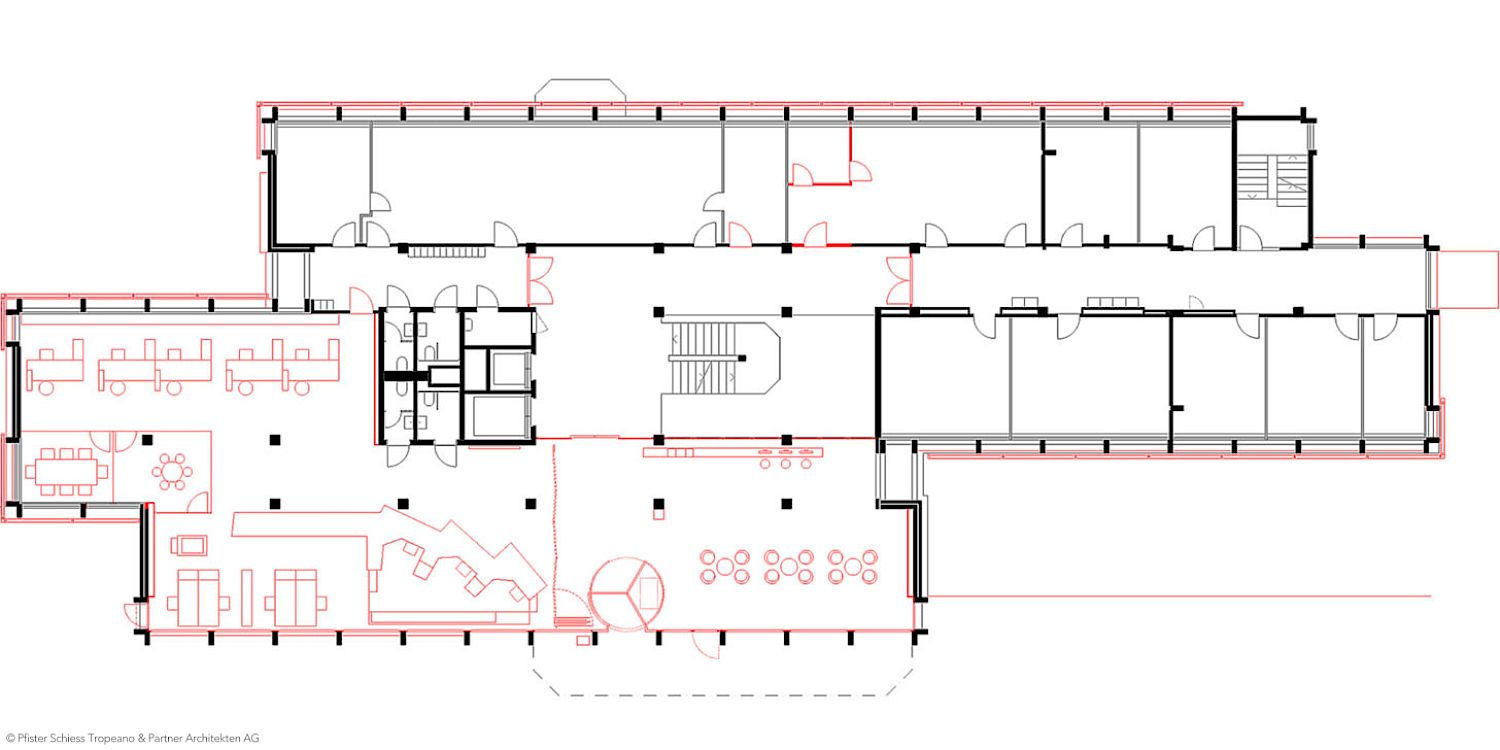
Zunächst einmal waren dringende technische, organisatorische und räumliche Verbesserungen vorzunehmen. Dabei sollte auch die Darstellung des Verhältnisses der Verwaltung zu den Bürgerinnen und Bürgern aktualisiert werden. Die Schalter sind das Kernstück, ihre Neugestaltung macht diese Veränderung sichtbar.

Denselben Bedeutungswandel soll auch die Fassade wiederspiegeln. Der Architekt des ursprünglichen Baus von 1979, Theo Landis, stellte aus dem Baukasten der damals gängigen Vorfabrikation eine Kolossalordnung mit Pilastern und Feldern zusammen, mit den Risaliten und Ecklösungen aus dem Formenrepertoire der Renaissance. Der elegante Bau brachte den Anspruch der neugegründeten Stadt Schlieren zur Darstellung.

Diese Fassaden waren nun mit einem neuen Sonnenschutz zu ergänzen. Ihn im Relief der Fassade zu verbergen, hätte angesichts der Bautoleranzen kostspielige Einzelanfertigungen erforderlich gemacht. Technisch einfacher war, ihn davor durchlaufend anzubringen. Die Fassade derart zu verändern, stellte zwar eine entwerferische Herausforderung dar, aber weil sie ihre Selbstdarstellung auffrischen suchte, stimmte die Stadt diesem formal anspruchsvollen, dafür technisch einfachsten und ökonomisch elegantesten Weg zu.

Dem Grundmuster des ersten Baus wurde eine horizontale Struktur überblendet, deren weiss gezeichnete Bänderung den neuen Charakter einführt. Diese transparente Verräumlichung der Fassade verändert mit ihrem raumerweiternden Spiel von Licht und Schatten und Spiegelungen die Atmosphäre im Inneren, ein frischer Wind durchzieht den neuen Raum der Fassade.

Mit dieser schlichten Installation meinen wir einen Beitrag zum Thema der Verräumlichung von Grenzen zu leisten und gezeigt zu haben, wie inhaltliche Bezüge sinnfällig zu gestalten sind, wenn die Spielfreude der Auftraggeber mitmacht.

Adresse

Freiestrasse 6
8952 Schlieren

Erbaut

1979 von Theo Landis

Auftraggeber

Stadt Schlieren

Architektur

Pfister Schiess Tropeano & Partner Architekten AG

Projektverantwortlich Phasen 31/32/33/41/51/52/53:

Hauke Möller, Mitinhaber bis 11/2025

Leistungen

Projektierung, Ausschreibung, Realisierung

Realisierung

2008–2015 (in Etappen)

Bauvolumen

11.3 Mio. CHF

Bilder

Roger Frei